La sacristía y la cappella del Rosario en la basilica dei Santi Giovanni e Paolo, en Venecia
La Basilica dei Santi Giovanni e Paolo es maravillosa, espectacular, casi infinita, plagada de obras de arte, con una luz mágica de mañana que inunda el templo desde la cabecera, elegida por muchos de los dogi venecianos, nada menos que veinticinco, como última morada, con mausoleos que colmatan las naves laterales y las capillas absidiales, con una riqueza funeraria sólo comparable con la de Santa Maria Gloriosa dei Frari, el otro gran panteón veneciano.
Basilica dei Santi Giovanni e Paolo
Ya hemos dado varios paseos por ella y todavía nos quedaba disfrutar de la sacristía y de la cappella del Rosario.
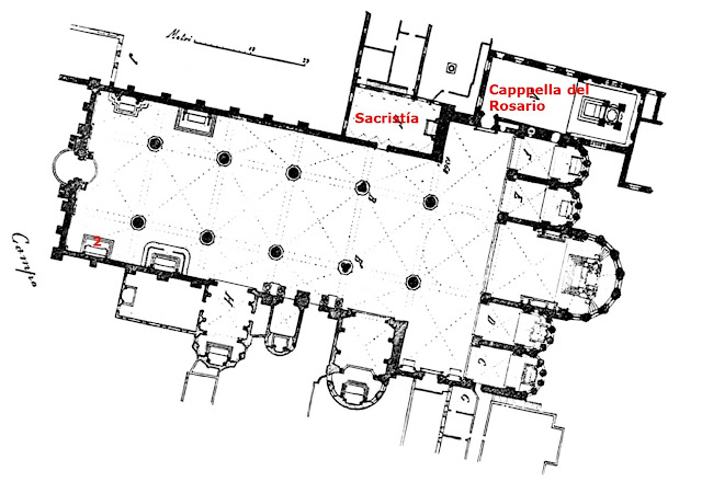
Plano de la basílica con la ubicación de la sacristía y la cappella del Rosario
La sacristía, abierta en el primer tramo de la nave del Evangelio, es un espacio rectangular cuya decoración muestra una iconografía de exaltación de la orden dominica, que era la que regentaba el monasterio al que perteneció la basílica hasta las desamortizaciones de comienzos del siglo XIX.
Nave del Evangelio con la portada de la sacristía
El techo, con estucos y pinturas del taller de Leandro Bassano, presenta una escena central con los santos Domingo y Francisco intercediendo ante Jesucristo Juez para salvar a la Humanidad del castigo divino, y en los lunetos aparecen santos dominicos salvo en la Anunciación de los situados a ambos lados del altar.
Escena central del techo de la sacristía
En la pared a la izquierda de la entrada se encuentra el Milagro de Santo Domingo pagándole a un marinero con dinero sacado de un pescado, de Odoardo Fialetti. Sobre la puerta están Santo Domingo y San Francisco, de Angelo Lion.
A la derecha de la entrada se relata la Donación del doge Jacopo Tiepolo a los dominicos del terreno para la edificación de la iglesia y el convento, de Andrea Michieli el Vicentino.
A la derecha del altar hay una Resurrección de Palma el Joven y a la izquierda, una Subida al Calvario de Alvise Vivarini. La Adoración de la Cruz por santos dominicos del altar también es de Palma el Joven.
Detalle del testero del altar, con la Adoración de la Cruz de Palma el Joven flanqueado por la Subida al calvario de Alvise Vivarini y la Resurrección de Palma el Joven y los lunetos de los Bassano con la Anunciación
La Adoración de la Cruz por santos dominicos de Palma el Joven
Continuando por la pared de la izquierda, primero encontramos unos Santos dominicos besando las llagas de Cristo y el Milagro del libro, ambos de Odoardo Fialetti, el Nacimiento de santa Rosa de Lima, de Francesco Fontebasso, un gran lienzo con Aprobación de la regla de Santo Domingo por Honorio III y un Martirio de los santos Juan y Pablo, ambos de Leandro da Bassano.
Otro aspecto de la sacristía
A la cappella della Santissima Virgine del Rosario, una auténtica joya plagada de obras de arte, se accede desde el transepto del Evangelio.
Transepto del Evangelio desde la Epístola, con la entrada a la cappella del Rosario en el centro, bajo el reloj
Es un ámbito de planta rectangular y presbiterio cuadrado, con trazas de Alessandro Vittoria, que se erigió en 1582 como sede de la Scuola del Rosario, de ahí su advocación, y para conmemorar la victoria en la Batalla de Lepanto, el 7 de octubre de 1571, día de la Virgen del Rosario, levantada sobre otra capilla de fines del Trecento dedicada a Santo Domingo.
Cappella del Rosario
En 1867 sufrió un incendio en el que se perdieron el techo de madera dorada con pinturas de Tintoretto y Palma el Joven y otros artistas, unas treinta y cuatro pinturas, además de un Martirio de San Pedro de Tiziano o una Madonna con Santos de Giovanni Bellini que ocupaba un altar en la nave de la Epístola y que estaban en la capilla para su restauración.
Fotografía de Carlo Naya tras el incendio de la cappella del Rosario en 1867 (1)
Los trabajos de recuperación de la capilla, se prolongaron años y no quedaron terminados hasta 1959, aplicándose al techo una labor de tallado y dorado de Carlo Lorenzetti para enmarcar distintos cuadros. Así, en la nave se reubicaron tres pinturas del Veronés procedentes de la suprimida iglesia dell'Umiltà alle Zattere: una Asunción en el centro con una Adoración de los Pastores y una Anunciación, flanqueándola.
Techo de la nave de la cappella del Rosario
Detalle de la escena central con la Asunción de la Virgen de Veronés
La Adoración de los pastores de Veronés y detalle de la labor de talla y dorado que enmarca las pinturas
En la pared del fondo, a la izquierda nada más entrar, hay otra Adoración de los Pastores, también de Veronés. Además, también destacan, en la pared de la derecha, sobre la puerta de ingreso, un Cristo muerto de Gian Battista Zelotti, un Noli me tangere de Carlo Caliari y un San Miguel luchando contra Lucifer de Bonifacio de’ Pitati; y en la de la izquierda, un Martirio de Santa Cristina de Sante Peranda, un Lavatorio de Pies y una Última Cena de Benedetto Caliari y un Milagro de Santo Domingo relacionado con el rezo del rosario de Alessandro Varottari el Padovanino.
Adoración de los Pastores de Veronés
En cuanto al presbiterio, también cuenta con techo de madera tallada y dorada de Carlo Lorenzetti y telas de Paolo Veronese fechadas en 1582 en las que se representan una Adoración de los Magos en el centro con los Cuatro Evangelistas en las esquinas, obras que tampoco fueron realizadas para esta ámbito, procedentes de la suprimida iglesia de convento franciscano de San Nicolò della Lattuga, vecino de Santa Gloriosa de Maria dei Frari.
Techo del presbiterio de la cappella del Rosario
El altar tiene forma de templete cuadrangular con cúpula, obra de Girolamo Campagna. Alberga una figura de la Virgen del Rosario en cerámica policromada.
Altar de la cappella del Rosario
Alrededor del zócalo en torno al presbiterio se ubicaron diez bajorrelieves del siglo XVIII, en parte restaurados tras el incendio. Comenzando por la izquierda, nos encontramos con una Anunciación de Giovanni Bonazza, una Adoración de los pastores de sus hijos Antonio, Francesco y Tommaso, una Visitación de Luigi Carlos Taglapietra, un Sueño de San José de Francesco Bonazza, María presentada en el templo y unos Desposorios de la Virgen de Giuseppe Torretto, un Descanso en la huida a Egipto de Gian Maria Morleiter, una Presentación en el templo de Luigi y Carlo Taglapietra, una Epifanía de Giovanni Bonazza y una Disputa ante los doctores de Morleiter.
Adoración de los pastores de los Bonazza
Disputa entre los doctores de Morleiter
Epifanía de Giovanni Bonazza
La suntuosa decoración de las paredes se completa con nichos con los Profetas Isaías, David y Jeremías, y las Sibilas Eritrea, Líbica y Délfica.
Otros artículos de VENECIA en Viajar con el Arte:
Basilica dei Santi Giovanni e Paolo
Monumentos fúnebres del lado de la Epístola y del lado del Evangelio de la Basilica dei Santi Giovanni e Paolo
Basilica di Santa Maria Gloriosa dei Frari
Monumentos fúnebres en Santa Maria Gloriosa dei Frari
Andrea Palladio
Mauro Codussi
Monasterio de San Michele in Isola
Cementerio de San Michele in Isola
San Giorgio Maggiore
Iglesia de San Sebastiano
Iglesia de San Zaccaria
Iglesia de San Giacomo da l’Orio
Nota:
(1) http://www.churchesofvenice.co.uk/castello.htm#sanzanipolo
Fuentes:
PAVANELLO, G. (ed.), La Basilica dei Santi Giovanni e Paolo. Pantheon della Serenissima, Venezia, ed. Marcianum Press-Fondazione Giorgio Cini, 2012.
http://www.basilicasantigiovanniepaolo.it/it/basilica/storia.html
http://it.wikipedia.org/wiki/Basilica_dei_Santi_Giovanni_e_Paolo_(Venezia)
http://www.churchesofvenice.co.uk/castello.htm#sanzanipolo



Comentarios