La ermita de San Miguel de Gormaz y sus pinturas, en Soria
La pequeña ermita de San Miguel se encuentra a media ladera
bajo las murallas del imponente castillo califal de Gormaz, definitivamente
conquistado a los musulmanes por Fernando I de León en 1060.
| Una de las entradas al castillo de Gormaz, con la ermita de San Miguel a los pies |
![]() |
| San Miguel de Gormaz con el castillo al fondo (1) |
Levantada sobre una plataforma aplanada sobre la roca que
sirvió de cimentación, presenta planta rectangular de nave única y cabecera
cuadrangular. Los muros se componen de encofrado de piedras y cal con los
ángulos reforzados con sillares de arenisca y caliza, todo ello cubierto de
enlucido interior y exterior, igual que en otras construcciones religiosas de
la época, como San Baudelio o Fuentearmegil. La espadaña que luce en la
actualidad es un añadido posterior, quizá del siglo XVI.
| Espadaña de San Miguel de Gormaz |
Sus formas todavía prerrománicas, encuadradas en lo que se denomina “mozárabe” o “arte de repoblación”, hacen pensar en que comenzó a erigirse en los años transcurridos entre la conquista del territorio en 1060 y el cambio litúrgico que se produce en la década de 1080 y en el que se sustituye el rito mozárabe por el romano, pues una de sus consecuencias, de la mano de cluniacenses franceses que lo implantan en la península, es la introducción del estilo románico, ese que ya sí se aprecia en San Miguel de San Esteban de Gormaz, erigida a comienzos del siglo XII.
![]() |
| Evolución de la planta de San Miguel antes de su restauración (2) |
En el interior, el pavimento era de mortero de cal y arena
sobre la propia roca, recortada y nivelada para lograr la mayor horizontalidad
posible. Un detalle de gran interés es la presencia de una pila bautismal
excavada a los pies del templo.
La nave comunica con la cabecera, que está elevada, mediante
un doble arco de herradura que presenta muchas similitudes con el de San Baudelio, y que ha sido recuperado, pues en el siglo XV había sido sustituido por uno carpanel, tras una concienzuda restauración integral de la ermita que
comenzó en 1996.
![]() |
| Aspecto de la ermita en fase de restauración, cuando todavía contaba con el arco carpanel incorporado en el siglo XV (2) |
| Doble arco de herradura original reconstruido (3) |
Como puede observarse en planta, en origen debió contar
con dos puertas, algo que, en principio, resulta extraño, ubicadas en el muro
meridional. Una está en el centro, a la que en una fecha
indeterminada le fue adosada la portada románica de la vecina desaparecida
parroquia de Santiago, con bastantes carencias en su reconstrucción, con
capiteles reutilizados como basas, fustes de madera, un sillar reaprovechado
con una inscripción romana o visigoda… Y la otra está a los pies, en el extremo
oeste del muro, un arco de herradura muy cerrado con los salmeres
redondeados y dovelaje típico califal del siglo X y que también se descubrió en la mencionada restauración.
![]() |
| Las dos puertas de San Miguel (4) |
Hacia el año 1100 se le añadió un pórtico con tres accesos, dos enfrentados a las dos
puertas de la iglesia y uno más en el muro este, y cuatro ventanas semicirculares
no muy grandes. En su suelo, lo mismo que en otras iglesias próximas, se
encontraron múltiples enterramientos que parecen corroborar su temprana fecha
de construcción de comienzos del siglo XII. En los alrededores de la ermita
también se ha localizado una necrópolis.
![]() |
| Planta de San Miguel con el pórtico y los enterramientos hallados (2) |
Pero lo más llamativo de San Miguel son sus pinturas murales,
que cubren la cabecera y algo más de media nave de la iglesia y que se fechan a
comienzos del siglo XII, también descubiertas durante las excavaciones arqueológicas y
consolidadas tras una importante labor multidisciplinar que ha hecho posible
que hoy puedan exponerse al público.
Parece deliberado que la parte hacia los
pies no presente decoración, con un límite que incluso se señala con cenefas,
lo que indica que no es que el trabajo no se terminara.
![]() |
| Nave de San Miguel tras la restauración (2) |
![]() |
| Vista de la nave hacia los pies, donde ya no hay decoración mural (2) |
Estas pinturas fueron realizadas, muy probablemente, por el mismo taller
que trabajó en la cercana ermita de San Baudelio de Berlanga, la de la Vera Cruz de Maderuelo, en Segovia, y la de San Martín de Ávila, esta última con restos también recientemente descubiertos y
restaurados. Además, se aprecian similitudes con las pinturas románicas del
valle de Boí, sobre todo Santa María de Tahull en Lérida, y que podrían estar
en relación con que el señor de Berlanga entre 1130 y 1136 fue el aragonés
Fortunio Aznárez, un dato importante para establecer su datación. Son
semejanzas que no necesariamente indicarían un mismo maestro o taller sino
conceptos estéticos similares y modelos extraídos de las pinturas murales
italo-bizantinas y de códices, que se extendieron gracias a pintores
itinerantes y a la necesidad de la Iglesia de reforzar sus dogmas y hacerse
presente en los territorios conquistados a Al-Ándalus.
La técnica empleada fue el temple sobre mortero de cal y
arena, usando rojos, ocres, ocres amarillos y ocres tierra, negro carbón y
blanco, lo típico de las pinturas románicas del momento.
Anteriores a este ciclo parecen ser ocho sencillas cruces patadas
distribuidas por los muros, muy similares a otras dos encontradas en SanBaudelio. Estas cruces también están presentes en
algunas antiguas iglesias del prepirineo conocidas por su decoración románica,
como en la cabecera de la catedral de Roda de Isábena. Se cree que en total
serían catorce las presentes en San Miguel. Su interpretación no es segura: hay quien apunta a una de las manifestaciones más antiguas de un Via Crucis y
otros que creen que podrían ser simples cruces de consagración.
| Una de las cruces patadas conservadas en los muros |
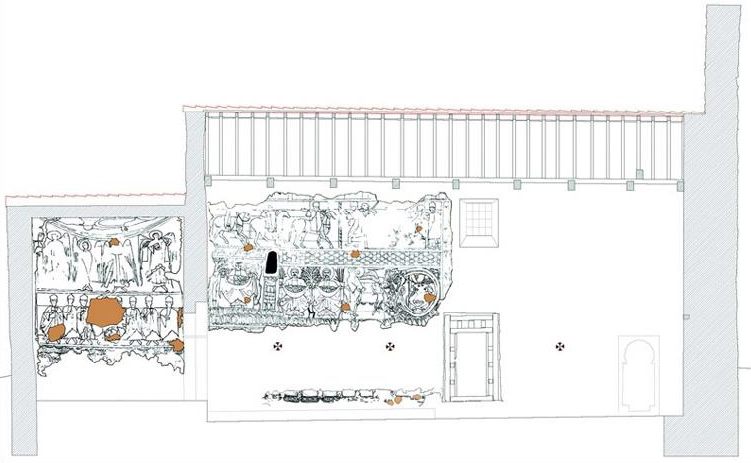
Las pinturas románicas muestran escenas figuradas, narrativas y
simbólicas repartidas por toda la cabecera y los muros norte y sur de
la nave de la iglesia, un contenido que se completaría con las escenas del
testero de la cabecera, perdidas, seguramente, cuando se sustituyó el arco de herradura por el carpanel en el siglo XV.
La decoración en la nave de la iglesia se distribuía en tres
registros horizontales separados por bandas decorativas ocupando toda la superficie, desde el arranque de los muros
hasta el apoyo de la cubierta de madera.
![]() |
| Esquema de las pinturas del muro del Evangelio (2) |
| Pinturas del muro del Evangelio en la nave |
![]() |
| Esquema de las pinturas en el muro de la Epístola (2) |
| Pinturas en el muro de la Epístola de la nave |
Apenas se conserva nada del registro inferior. Por lo que se
recuperó al retirar un banco corrido adosado a todo el perímetro de la nave, construido con posterioridad a la decoración, se ha deducido que lo
representado eran cortinajes figurados alternando tondos grandes y pequeños
enmarcando aves con las alas desplegadas o leones y decoración geométrica
radial respectivamente, una pintura que también está presente en el
presbiterio, y similar, además, a la que presentaba San Baudelio y que se supone
que también tenía la Vera Cruz de Maderuelo, con el mismo esquema compositivo
en los tres templos.
Comenzando por el friso superior norte, sobre un fondo de
bandas de color alternando colores claros y oscuros y que es común en toda la
decoración, se distinguen, de izquierda a derecha, la Anunciación, la Visitación,
el Anuncio a los pastores y la Natividad.
La escena de la Anunciación
está muy perdida, distinguiéndose solo la cabeza del arcángel Gabriel y algunos
trazos de la Virgen. En la Visitación
se adivinan las cabezas nimbadas de la Virgen y Santa Isabel y sus mantos,
abrazadas en presencia de una figura masculina muy perdida y que podría ser,
según la narración evangélica, Zacarías. En el Anuncio a los
pastores, que lo habitual es que aparezca después de la Natividad, como
correspondería al orden cronológico de los hechos, aquí trastocados, está bien
conservada la figura del ángel, de pie dirigiéndose a los pastores.
| El Anuncio a los pastores |
En la Natividad,
única escena que no tiene las bandas de fondo sino una representación
esquemática de montículos, quizá símbolo de una montaña, la Virgen aparece a la
izquierda, enmarcada en mandorla lobulada, reclinada y envuelta en un manto
azul oscuro con el Niño fajado en la cuna, representada en perspectiva abatida.
A la derecha está san José bajo un arco soportado por columnas, quizá evocación
del portal de Belén, separado de la Madre y su Hijo, forma habitual de representarlo en el románico para hacer hincapié en la virginidad de María.
| La Natividad |
Siguiendo con las escenas del friso superior del sur, con
iguales franjas de fondo y de nuevo de izquierda a derecha, se observan las
escenas de la Comitiva de los Reyes Mayos
y la Matanza de los Inocentes. En la de los Reyes, la figura mejor conservada es el primer
jinete que parece indicar con la mano derecha la estrella que les guía. Se
separa de Herodes mediante una franja vertical, quizá una columna, aunque parece
haber intencionalidad en relacionarlas, en referencia al episodio del Evangelio
de San Mateo que narra cómo les pide a los magos que a la vuelta de ver al
Mesías, le comuniquen dónde está para adorarle él también, aunque todos sabemos
que sus intenciones eran otras, y que al no ser avisado, ordena la matanza de
todos los niños menores de dos años, la escena que viene a continuación y que está
bastante perdida. En ella parece adivinarse de nuevo la figura de Herodes presenciando
la escena.
| Cabalgata de los Reyes Magos |
| Matanza de los inocentes |
Para completar el Ciclo de la Vida de Jesús, faltarían la Epifanía y la Presentación en el Templo, que sí se conservan en San Baudelio, y
que quizá aquí estuvieran en el testero de la cabecera.
En el friso inferior norte aparecen tres escenas de
contenido diverso, sin que parezcan
tener relación directa con las ya descritas ni entre ellas mismas. De izquierda
a derecha, vemos primero un santo nimbado con vestiduras de diácono con la mano
derecha bendiciendo. Está bajo una arcada y ocupa una posición preeminente en
el templo, justo frente a la puerta principal, por lo que era la
primera imagen que vería el fiel al entrar, pudiendo ser el santo titular u
otro santo de especial devoción en ese momento.
| Santo nimbado frente a la puerta de acceso |
Después hay una escena de un combate a caballo entre dos
grupos de caballeros flanqueada por sendas atalayas con ventanas en las que
asoman cabezas; entre las almenas de la de la derecha un personaje toca un gran
cuerno y al lado de la de la izquierda hay otro con una ballesta. Quizá refleje
algún acontecimiento coetáneo a las pinturas, una época de mucha actividad
guerrera, o ser una representación simbólica de a lucha entre el bien y el mal.
| Lucha entre caballeros flanqueada por atalayas |
| Atalaya con refugiados y arquero a la izquierda de la escena de lucha |
Y a continuación se representa a Las tres Marías, María Magdalena, María de Santiago y María Salomé,
con túnicas de distintos colores y sujetando pomos de perfumes con su mano
izquierda y señalando con la derecha al muro del testero de la cabecera, donde,
seguramente estaría el Santo Sepulcro, lo mismo que en San Baudelio, aludiendo
directamente a la Resurrección de Cristo, del que ellas fueron testigos.
| Las Tres Marías |
Finalmente, en el registro inferior sur aparecen otras tres
escenas, con la Psicostasis o Pesaje de las almas en el Juicio Final
en el centro, flanqueado por el Paraíso,
a la izquierda y el Infierno a la
derecha. El arcángel san Miguel sostiene una balanza con la que pesa las almas
mientras un pequeño diablo intenta trucar el pesaje. Bajo el platillo izquierdo
de la balanza se lee la inscripción “MIHE”, en referencia al arcángel.
| Psicostasis o Pesaje de las almas |
Los justos descansan en la paz eterna, representados en los
regazos de tres personajes enmarcados por árboles, quizá la representación del
Paraíso, con una torrecilla, quizá reflejo de la Jerusalén Celeste.
| Los justos en el regazo de tres personajes que hay autores que identifican con Abraham, Isaac y Jacob, con una torrecilla y árboles de especies diferentes |
Mientras, los condenados se agolpan al lado del Infierno,
una gran serpiente de dos cabezas que devoran sendos hombres; está enroscada y a
su vez contiene otro gran monstruo encadenado a un poste, quizá en relación con
lo que dice el Apocalipsis de que se libera una vez cada mil años, que también está
devorando varios cuerpos, todo ello rodeado de bestias demoniacas atormentando
a los condenados.
| Representación del Infierno |
| Detalle de una de las cabezas de la serpiente |
Ya en el presbiterio, en la bóveda aparece la Maiestas Domini del Juicio Final, en
mandorla, con la mano derecha bendiciendo. Está flanqueada por cuatro figuras
aladas a cada lado que presentan dificultades para su interpretación.
| Maiestas Domini en el centro de la bóveda del presbiterio |
Se cree que los cuatro de los extremos podrían ser los
Evangelistas, lo mismo que en la ermita de la Vera Cruz de Maderuelo. En cuanto
a las dos parejas centrales, podrían ser san Miguel, protagonista de la lucha
contra el Demonio y el resto de ángeles rebeldes, acompañado de un querubín, y
san Gabriel, el que anuncia la Venida del Mesías, preludio de la victoria
final, junto a un serafín.
![]() |
| Figuras a uno de los lados de la Maiestas |
El que podría identificarse con san Miguel muestra casulla y
estola similares a las de la figura que recibe a los fieles dando la bienvenida a la
iglesia en el muro norte y que ya hemos visto que algunos investigadores
también identifican con el santo titular.
En cuanto a los muros, en el registro superior se
representan los Veinticuatro Ancianos del Apocalipsis que, junto a los
Evangelistas, forman la corte del Juez Supremo. Alternan los que llevan una copa
con los que tocan la vihuela. En el centro del muro sur se ubica una credencia decorada con
roleos vegetales.
| Detalle de los Ancianos y la credencia en el muro de la Epístola del presbiterio |
| Detalle de uno de los Ancianos |
En el testero de la cabecera se abre una ventana de medio
punto con el intradós decorado con la paloma del Espíritu Santo inserta en una
pequeña mandorla y con la cabeza hacia arriba, igual que en Maderuelo pero al
contrario que en San Baudelio.
| Paloma del Espíritu Santo en la ventana del testero de la cabecera del presbiterio |
El programa del presbiterio se completa con los lunetos. En
el de la cabecera se continúa la representación de distintos pasajes del
Apocalipsis, con una cruz griega patada con un medallón con el Agnus Dei en el centro, sujeta por dos
ángeles con las alas desplegadas a su vez flanqueados por sendas figuras
arrodilladas, posiblemente Abel a la izquierda, y Melchisedec a la derecha, si
de nuevo tomamos referencias de San Baudelio y la Vera Cruz. El otro luneto
podría representar la Creación de Adán y
Eva.
| Testero de la cabecera, con luneto presidido por el Agnus Dei |
| Luneto con una posible representación de la Creación de Adán y Eva |
La Maiestas
Domini, el Agnus Dei y la paloma del Espíritu Santo forman el concepto de
la Trinidad, uno de los dogmas más importantes del cristianismo. Además, si
admitimos que en el luneto de la puerta estaba representada al Creación de Adán
y Eva narrada en el Génesis y lo unimos al Juicio Final del
Apocalipsis de la bóveda, el conjunto iconográfico también estaría representando el
principio y el fin, recordando al fiel que al final de los tiempos Dios volverá
para juzgar a los hombres y que los justos recuperarán el paraíso perdido.
En el registro inferior se pueden observar mejor los
cortinajes figurados que también estaban en la nave de la iglesia, muy similares a los de San Baudelio y la Vera Cruz de Maderuelo.
![]() |
| Detalle del registro inferior del presbiterio, donde se reproducen unos cortinajes que debenser muy similares a los que presentaba la nave (2) |
El esquema general de estas pinturas responde al modelo
básico de las iglesias románicas, que se conformaban casi como la única fuente
de información para el fiel, auténticas parábolas que daban las pautas para su vida y proporcionaban la esperanza de la salvación, pero también
mostrando los peligros de la condena en el infierno, abarcando las tres
principales temáticas románicas, con una manifestatio, plasmada a través de la
Trinidad, una narratio, mediante las escenas de la Vida de Cristo y una testificatio,
a partir de la presencia de san Miguel, titular de la iglesia que da fe de la
veracidad de lo allí representado, además de ser el jefe de los Ejércitos de
Dios, protector de la Iglesia Universal y garantía última de la victoria sobre
el demonio al velar por la justa valoración de las obras del hombre y acompañar
su alma hasta el paraíso.
Finalmente, el que media nave hacia los pies no estuviera
decorada hace intuir que la parte pintada podría haber estado separada físicamente, quizá con un cortinaje, del resto, creando dos ámbitos con funciones litúrgicas distintas. Los cortinajes son propios de todas las religiones
mistéricas y ya en el siglo VI aC. Pitágoras, durante los tres primeros años de
aprendizaje sólo permitía a sus alumnos escucharle tras una cortina, siendo
admitidos “al otro lado del velo” si lograban superar los exámenes. El espacio a los pies podría haberse
destinado a catecúmenos, de ahí la existencia de la pila bautismal excavada en el piso y de una
segunda puerta de acceso a la nave.
Así, la iglesia contaría con un espacio arquitectónico unitario pero dividido litúrgicamente en tres ámbitos: presbiterio para los oficiantes, algo más de media nave para bautizados, con hombres y mujeres separados en lado del Evangelio y de la Epístola respectivamente, y un último ámbito, sin decoración alguna, para los no bautizados en espera de ser admitidos en el seno de la Iglesia.
Así, la iglesia contaría con un espacio arquitectónico unitario pero dividido litúrgicamente en tres ámbitos: presbiterio para los oficiantes, algo más de media nave para bautizados, con hombres y mujeres separados en lado del Evangelio y de la Epístola respectivamente, y un último ámbito, sin decoración alguna, para los no bautizados en espera de ser admitidos en el seno de la Iglesia.
Y para terminar, quiero darle un gran abrazo agradecido a la arqueóloga Consuelo Escribano, que fue la que hizo posible que disfrutara de sus maravillosas explicaciones y de las de Arturo Balado, que nos relataron, de primera mano y emocionándonos, todo el proceso de excavación, descubrimiento y restauración que protagonizaron durante varios años recuperando esta pequeña gran joya de la Historia del Arte.
Otras IGLESIAS en Viajar con el Arte:
Santa María de la Asunción de Gumiel de Izán, en
Burgos
Santa María la Real de Aranda de Duero en Burgos
San Miniato al Monte de Florencia
San
Esteban de Salamanca
"La Clerecía" de Salamanca
San
Vicente de Ávila
San
Ildefonso de Toledo
San
Román de Toledo
San
Sebastiano en Venecia
San
Zaccaria en Venecia
San
Giacomo da l’Orio en Venecia
Imágenes ajenas:
(2) ESCRIBANO, C. y HERAS, E. (Coord.), San Miguel de Gormaz. Plan para la recuperación integral de un edificio histórico, Valladolid, Junta de Castilla y León, 2008. DVD.
Fuentes:
ESCRIBANO, C. y HERAS, E. (Coord.), San Miguel de
Gormaz. Plan para la recuperación integral de un edificio histórico, Valladolid, Junta
de Castilla y León, 2008.












Comentarios
Ana.
Muy bueno el artículo Sira.
Muchas gracias por recordarme los campos sorianos, Sira.
Una vez más, me has enseñado un montón de cosas nuevas y ya he actualizado mi larguísima lista de pendientes con esta iglesia y sus pinturas. Tengo que admitir que esa representación del infierno me ha sobrecogido especialmente.
¡No hay patrimonio que se te resista!
Blogginup es una pagina web que permite seguir contenido de los blogs que mas te gustan de la forma mas sencilla.
Cientos de blogeros dan a conocer su blog en Blogginup.com.
Los usuario pueden seguir tu contenido y ordenarlo como mas le convenga, marcando los post con etiquetas.
Mediante los botones sociales de Facebook,Twitter,Pinterest y Google+ las entradas obtienen mayor repercusión.
Te invito a entrar y añadir tu blog en menos de 1 minuto.
http://www.youtube.com/watch?v=Lgt0R4xhj48
blogginup.com
Besos!
Saludos.
Mi felicitaciones por el gran trabajo que has hecho, no sólo en esta entrada -que me he tomado la libertad de referenciar en mi sitio-, si no en todo el blog, al que he estado visitando estos últimos días.
Un saludo
Las pinturas bellísimas con su color patinado...
Gracias una vez mas.
Victoria Del Río.